Skip to main content

Notice of Complete Applications

September 26, 2025
Planning & Development
Aerial view of a suspension bridge in the County.

Official Plan Amendment, Zoning By-law Amendment and Plan of Subdivision in the Township of Cramahe

Township of Cramahe File Numbers: D09-OPA-01-25 and D14-BAS-12-25

Northumberland County File Number: D12-CR2501

The Township of Cramahe and Northumberland County have received applications for an official plan and zoning by-law amendment as well as for a draft plan of subdivision and is notifying the public in accordance with the Ontario Planning Act.

Purpose of the applications

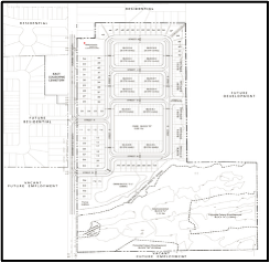
These applications are to facilitate an urban residential development to create up to 206 lots consisting of 134 townhouses, 72 detached dwellings, a public park, environmentally sensitive areas, a stormwater management facility, and municipal roads in the Village of Colborne.

Location of development proposal

The development is located at 207 Durham Street South and includes the north abutting property. The development is situated on the east side of Durham Street South, south of King Street East as illustrated on the following location map and submitted subdivision plan below (click to enlarge):

.

Public meeting

The Township of Cramahe and Northumberland County will be hosting a joint public meeting on this development proposal on Wednesday, November 12, 2025, from 5:00 p.m. to 6:00 p.m. at the Keeler Centre (80 Division Street, Colborne, Ontario).

Submissions

Any person may make a written representation either in support of or in opposition to the proposed development. Any person must also make a written request to the Township of Cramahe and Northumberland County if they wish to be notified of any decisions on this development. The Township and the County request that any written comments related to this development proposal be made in writing via email or mailed letter by Friday November 28, 2025.

Appeal Rights – Official Plan and Zoning By-Law Applications

If a specified person or public body as defined in the Ontario Planning Act does not voice their opinions at a public meeting and/or submit their opinions in writing by email or letter to the Township of Cramahe on the proposed official plan and/or zoning by-law amendments before the Township adopts an official plan or passes a zoning by-law respectively, the specified person or public body cannot appeal Cramahe Council’s decision(s) to the Ontario Land Tribunal.

If a specified person or public body does not send a letter or make an oral submission at a public meeting to the Township of Cramahe expressing their opinions on the proposed official plan amendment and/or zoning by-law amendment, the specified person or public body may not be added as a party to the hearing of an appeal before the Ontario Land Tribunal unless the Tribunal Member believes that there is a reason to accommodate that request.

Appeal Rights – Plan of Subdivision

If a specified person or public body as defined in the Ontario Planning Act does not voice their opinions on the proposed draft plan of subdivision by sending an email or letter to Northumberland County before the County makes a decision on the plan of subdivision, the specified person or public body cannot appeal County Council’s decision to the Ontario Land Tribunal.

If a specified person or public body does not send an email or letter to Northumberland County expressing their opinions on the proposed plan of subdivision, the specified person or public body may not be added as a party to the hearing of an appeal before the Ontario Land Tribunal unless the Tribunal Member believes that there is a reason to accommodate that request.

Attachments

Comments or questions

Additional information relating to this development is available at either the Township of Cramahe or Northumberland County municipal office at the addresses below or by contacting the following.

Matt Coffey, MCIP, RPP
Manager of Planning
Township of Cramahe
1 Toronto Street
Colborne, Ontario KOK 1S0
p. 905-355-2821 ext. 242
Email Matt Coffey

Ashley Anastasio, RPP, MCIP
Senior Planner, Land Use Planning
County of Northumberland
555 Courthouse Road
Cobourg, Ontario K9A 5J6
p. 905-372-3329 ext. 6221
Email Ashley Anastasio

Latest News

Stay informed about our community updates

View More